Главная » Дымоходы » Монтажные элементы » Консоль » Консоль К6 (430/2 шт) L-700, дымоход FERRUM
Консоль К6 (430/2 шт) L-700, дымоход FERRUM
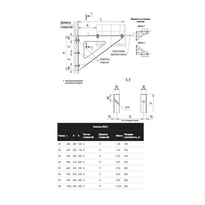
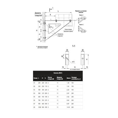
Используется совместно с монтажной площадкой.
Консоль выступает в роли опоры дымохода.
Монтаж консолей осуществляется на вертикальную плоскость cтены или мачты.
Предусмотрен ряд типоразмеров консолей для подбора нужного расстояния между стеной (мачтой) и дымоходом.
Предусмотрена регулировка этого расстояния в пределах 100мм. На Консоль К1 (430/2 шт) L-700 можно установить монтажную площадку размером до Ф200х130, а если необходимо установить монтажную площадку большего размера, то необходимо выбрать консоль следующего порядка (Консоль К5... Консоль К7).
При монтаже дымохода с применением конструкции Консоль + Монтажная площадка данные элементы необходимо устанавливать на вертикальных участках через каждые 3-4м сэндвичей и в местах, где необходимо поддерживать большой вес конструкции (после поворотов сэндвич-тройниками, сэндвич-коленами).
При подборе дымохода для банной печи на данном элементе не следует экономить.
Не рекомендуется использовать конструкции, не предназначенные для опоры дымохода.
Нельзя использовать стеновые кронштейны в качестве опоры дымохода.
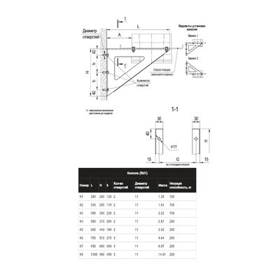
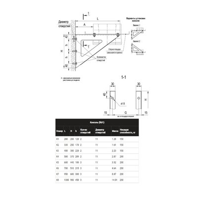
Консоль выступает в роли опоры дымохода.
Монтаж консолей осуществляется на вертикальную плоскость cтены или мачты.
Предусмотрен ряд типоразмеров консолей для подбора нужного расстояния между стеной (мачтой) и дымоходом.
Предусмотрена регулировка этого расстояния в пределах 100мм. На Консоль К1 (430/2 шт) L-700 можно установить монтажную площадку размером до Ф200х130, а если необходимо установить монтажную площадку большего размера, то необходимо выбрать консоль следующего порядка (Консоль К5... Консоль К7).
При монтаже дымохода с применением конструкции Консоль + Монтажная площадка данные элементы необходимо устанавливать на вертикальных участках через каждые 3-4м сэндвичей и в местах, где необходимо поддерживать большой вес конструкции (после поворотов сэндвич-тройниками, сэндвич-коленами).
При подборе дымохода для банной печи на данном элементе не следует экономить.
Не рекомендуется использовать конструкции, не предназначенные для опоры дымохода.
Нельзя использовать стеновые кронштейны в качестве опоры дымохода.
Совместимые товары
| Размер (ШхВхГ), мм | 700*300 |
|---|---|
| Цвет | металик |
| Материал | сталь AISI430 |
| Гарантия | 1 год |
| Оснащение | отверстия для крепления |


Тел./факс: (423) 205-65-02




