Главная » Дымоходы » Монтажные элементы » Консоль » Консоль К5 (430/2 шт) L-600, дымоход FERRUM
Консоль К5 (430/2 шт) L-600, дымоход FERRUM
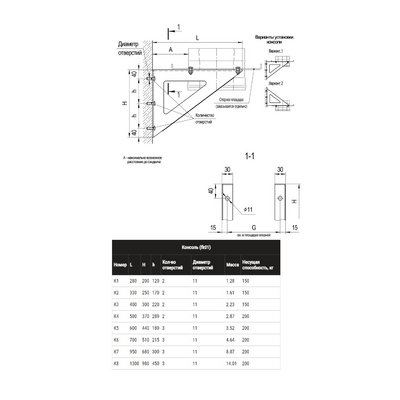
Используется совместно с монтажной площадкой.
Консоль выступает в роли опоры дымохода.
Монтаж консолей осуществляется на вертикальную плоскость cтены или мачты.
Предусмотрен ряд типоразмеров консолей для подбора нужного расстояния между стеной (мачтой) и дымоходом.
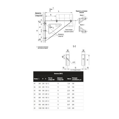
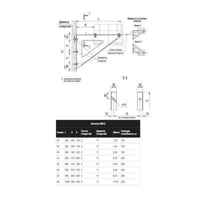
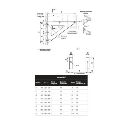
Консоль выступает в роли опоры дымохода.
Монтаж консолей осуществляется на вертикальную плоскость cтены или мачты.
Предусмотрен ряд типоразмеров консолей для подбора нужного расстояния между стеной (мачтой) и дымоходом.


Тел./факс: (423) 205-65-02




