Главная  »  Дымоходы  »  Монтажные элементы  »  Консоль  »  Консоль К2 (430/2 шт) L-330, дымоход FERRUM 
						
							
							
								
								
								
								
									
									
										
											
										
											
										
									
								
								
								
								
									
								
							
							
						
					
 
				Консоль К2 (430/2 шт) L-330, дымоход FERRUM
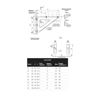
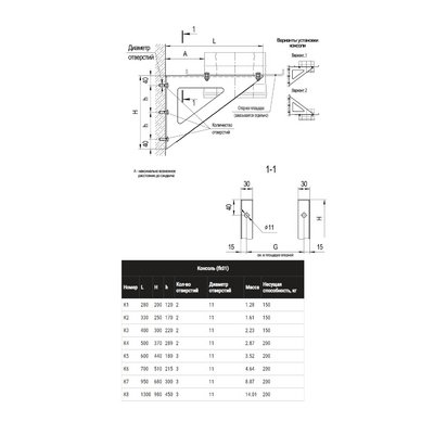
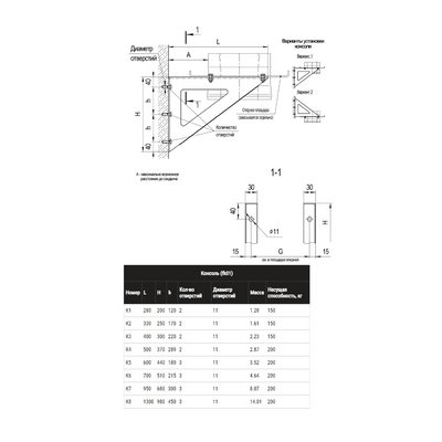
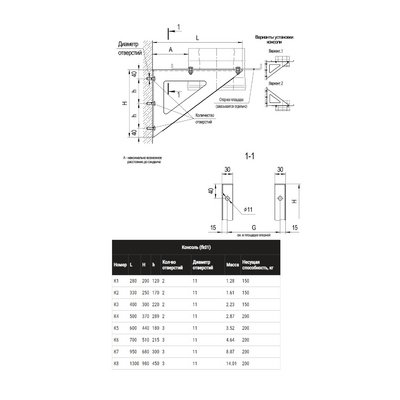
Используется совместно с монтажной площадкой. 
Консоль выступает в роли опоры дымохода.
Монтаж консолей осуществляется на вертикальную плоскость cтены или мачты.
Предусмотрен ряд типоразмеров консолей для подбора нужного расстояния между стеной (мачтой) и дымоходом.
Предусмотрена регулировка этого расстояния в пределах 100мм. На Консоль К1 (430/2 шт) L-330 можно установить монтажную площадку размером до Ф200х130, а если необходимо установить монтажную площадку большего размера, то необходимо выбрать консоль следующего порядка (Консоль К5... Консоль К7).
При монтаже дымохода с применением конструкции Консоль + Монтажная площадка данные элементы необходимо устанавливать на вертикальных участках через каждые 3-4м сэндвичей и в местах, где необходимо поддерживать большой вес конструкции (после поворотов сэндвич-тройниками, сэндвич-коленами).
При подборе дымохода для банной печи на данном элементе не следует экономить. Не рекомендуется использовать конструкции, не предназначенные для опоры дымохода.
Нельзя использовать стеновые кронштейны в качестве опоры дымохода.
											
											
										Консоль выступает в роли опоры дымохода.
Монтаж консолей осуществляется на вертикальную плоскость cтены или мачты.
Предусмотрен ряд типоразмеров консолей для подбора нужного расстояния между стеной (мачтой) и дымоходом.
Предусмотрена регулировка этого расстояния в пределах 100мм. На Консоль К1 (430/2 шт) L-330 можно установить монтажную площадку размером до Ф200х130, а если необходимо установить монтажную площадку большего размера, то необходимо выбрать консоль следующего порядка (Консоль К5... Консоль К7).
При монтаже дымохода с применением конструкции Консоль + Монтажная площадка данные элементы необходимо устанавливать на вертикальных участках через каждые 3-4м сэндвичей и в местах, где необходимо поддерживать большой вес конструкции (после поворотов сэндвич-тройниками, сэндвич-коленами).
При подборе дымохода для банной печи на данном элементе не следует экономить. Не рекомендуется использовать конструкции, не предназначенные для опоры дымохода.
Нельзя использовать стеновые кронштейны в качестве опоры дымохода.
| Длина консоли | 330 | 
|---|---|
| Материал | Сталь AISI430 | 
 
  
 

 Тел./факс: (423) 205-65-02
Тел./факс: (423) 205-65-02 
		
 
				
 
				
 
				
 
				
